编辑:杨维易2017-03-29 00:11内容来源:深圳工务署
为你呈现深圳中学(泥岗校区)这所“未来学校”,相对传统校园有哪些突破之处。
二、功能突破
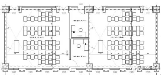
(一)教学区——教室打破传统固定模式,实验室桌子和相关管线不固定在地面上
教室单元设置为35人班与50人班组合布局,可以多功能、多人数自由转换。
▲35人 35人教室组合平面图(中间设置教师休息室,如有需要,可拆除休息室设置,即转换为下图35人 50人教室)
上一篇清明假期:深圳北站增开16对列车 湖南等地车票售完下一篇湖贝旧改公示:将由华润主导9年变身罗湖新地标
相关新闻