编辑:杨维易2017-03-29 00:11内容来源:深圳工务署
为你呈现深圳中学(泥岗校区)这所“未来学校”,相对传统校园有哪些突破之处。
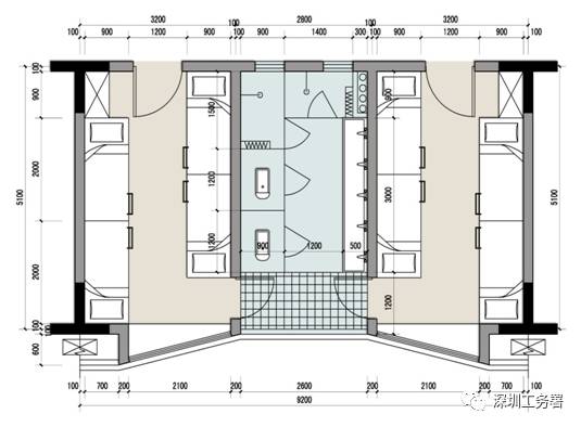
(二)学生宿舍——不同于以往的高层单一宿舍建筑以及卫生间设置在阳台
学生宿舍将是由高层宿舍、底层架空层及食堂组成的功能复合的建筑综合体。这样将大大缩短学生的生活流线。
洗手间设置在两个学生宿舍中间(每两间宿舍共享一个洗手间),妥妥地解决了通风、采光等问题。
上一篇清明假期:深圳北站增开16对列车 湖南等地车票售完下一篇湖贝旧改公示:将由华润主导9年变身罗湖新地标
相关新闻