深圳新闻

重磅 !政策风向突变 深圳商住公寓“吹冷风”

编辑:陶倩2017-01-16 07:23内容来源:读创新闻

新闻提要

赠送方式主要是在户型与户型之间,或户型与核心筒之间预留凹槽,后期搭板,增大室内空间。这条规定,主要针对的是功能性凹槽,面宽(东西墙宽度)和进深(南北墙宽度)之比大于2;否则,要按照投影计算面积。

先科普以下,神马是“外墙凹槽”。

建筑外墙的凹槽,有功能性和非功能性两种。

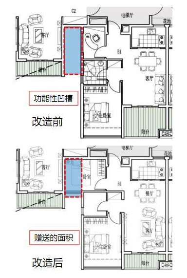
1.功能性凹槽赠送

功能性凹槽设置有大小限制,一是深度与宽度之比不大于4,二是深度不超过8m。

赠送方式主要是在户型与户型之间,或户型与核心筒之间预留凹槽,后期搭板,增大室内空间。

2.非功能性凹槽赠送

在户内房与房之间,结合房间设计非功能性凹槽,后期搭板,加大房间进深。

 

 

这条规定,主要针对的是功能性凹槽,面宽(东西墙宽度)和进深(南北墙宽度)之比大于2;否则,要按照投影计算面积。

也就是要求发挥功能性凹槽的真正功能,降低从中偷面积的可能。

这还不算,通知还从建筑面积上进行约束。

就写字楼而言,建筑面积小于等于200平方米的单套户型面积之和,不能超过半个楼层。

照此,一个楼层N个小户型的设计,将不得通过。

研发用房也不得设计单套小于250平方米的户型。

这条就很重要了,因为它规定了执行时间,也就是2017年1月13日之后报批的设计方案,才执行该通知内容。

对于已经通过审批和存量部分,不产生影响。

相关新闻